Take On Add Away – A transformation of the Palais des Expositions Charleroi

38,00 

  • Editors: AgwA, architecten jan de vylder inge vinck, Photos: Filip Dujardin
  • English
  • Published in: 2026
  • 240 pages
  • 262 x 210 mm
  • ISBN: 978-3-944074-62-7
  • Sicherheitshinweis entsprechend Art. 9 Abs. 7 S. 2 der GPSR entbehrlich/Safety notice in accordance with Art. 9 Para. 7 p. 2 of the GPSR not required

EU Prize for Contemporary Architecture –

Mies van der Rohe Awards for the remarkable transformation project!

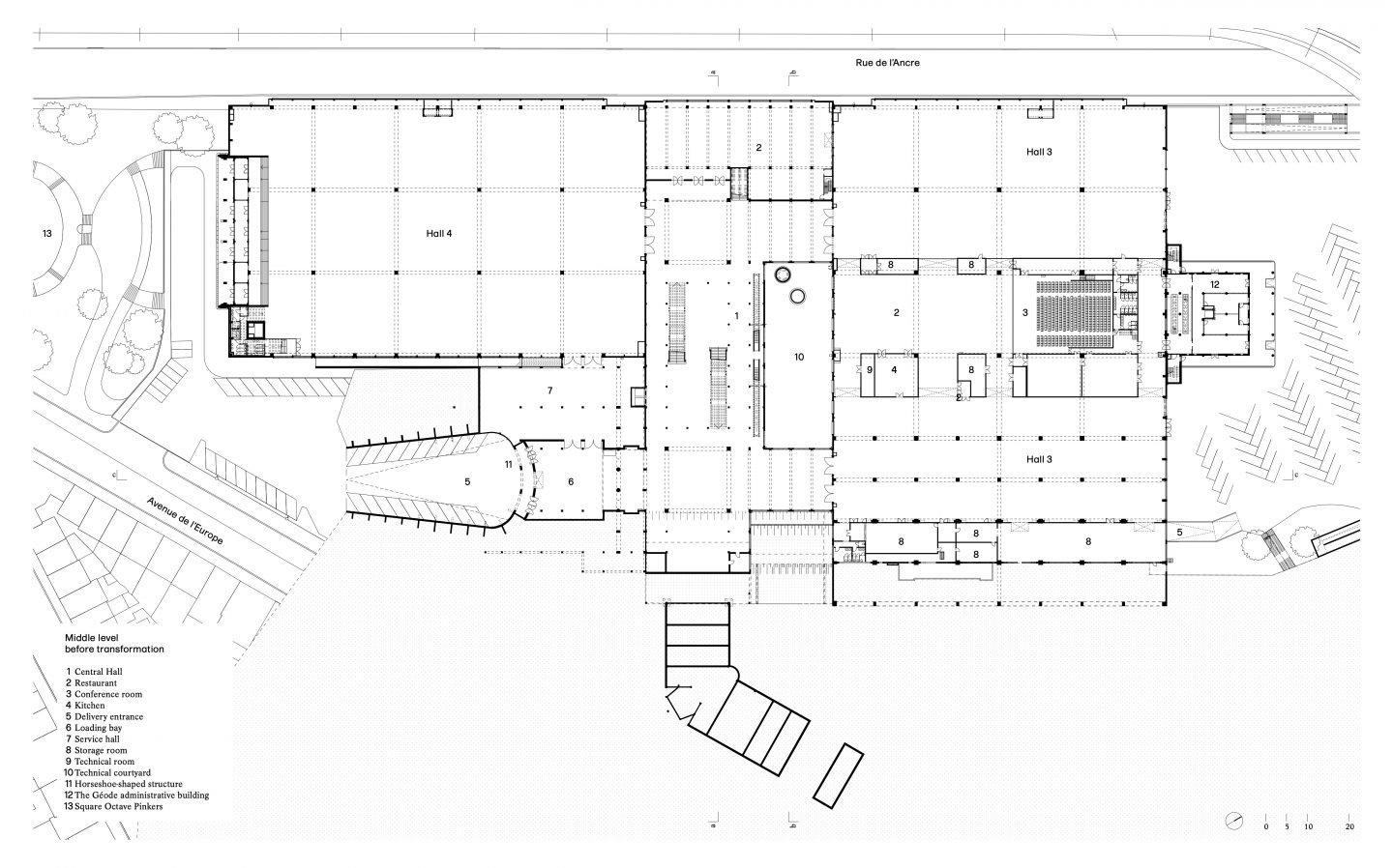
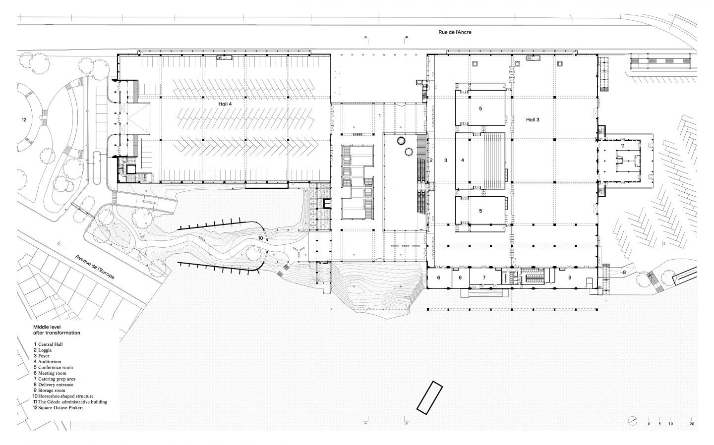
A monument to industrial optimism—and its radical reinvention: this book tells the story of the transformation of the Palais des Expositions in Charleroi, Belgium. Built between 1948 and 1953 by architect Joseph André as a symbol of the nation’s progress, the vast complex fell into disuse after the decline of steel and coal. With a design approach rooted in radical sufficiency, AgwA and architecten jan de vylder inge vinck reveal the building’s inherent qualities. By removing much of the façade while preserving the floors, stairs, and roof, they transform the central hall into an open urban foyer that reconnects the structure with the city and the surrounding landscape.

Featuring photographs by Filip Dujardin, who documented the process over six years, and detailed, color-coded drawings by the architects that distinguish between original structure, demolition, and new construction, the book renders the building’s complex transformation strikingly legible. An introduction by Ilka Ruby and Andreas Ruby and insights from the architects, engineers, developers, and city officials present the project as a powerful model for rethinking existing architecture.

Auslieferung ab Ende April!

1/